Дома под ключ в Анапе
Отзывы из Яндекс Карт
4.9
117 отзывов
Дополнительные услуги 88%
2 154 оценок
Комплектации 89%
1 535 оценок
Планировки 90%
2 484 оценок
Проекты 93%
2 231 оценок
С
Феликс Вешняков08.01.2026 г.
С компанией связывался напрямую через сайт, менеджер Сергей быстро перезвонил. Выбрали проект с мансардой, строили под усадку. Год ждали, потом делали отделку уже сами. Конструктив крепкий, никаких перекосов за это время не появилось.
С
Борислав Еромлаев08.02.2025 г.
Отдельно хочу отметить оперативность и честность менеджеров компании, все нюансы по стоимости и срокам были оговорены сразу и остались неизменны до конца, никаких скрытых платежей или неприятных сюрпризов, что в наше время большая редкость, спасибо за порядочность и открытость в работе.
Отзывы из Google Карт
4.8
70 отзывов
Дополнительные услуги 88%
2 154 оценок
Комплектации 89%
1 535 оценок
Планировки 90%
2 484 оценок
Проекты 93%
2 231 оценок
С
Филипп Медведев14.04.2026 г.
Дом 5,5х9 с крыльцом и навесом строили под ключ с электрикой и водой. Сантехнику подключили кое-как, смеситель капал. Пришлось самому подтянуть гайки, но в целом терпимо.
С
Трофим06.03.2026 г.
Дом 6х8 с верандой и печкой строили под усадку. Через год обшили блок-хаусом. К дереву претензий нет — брус ровный, не треснул. Зато с печкой намучились — дымоход поставили с нарушением, дымило. Переделали после жалобы.
С
Кристина Макарова17.07.2025 г.
Я в полном восторге от того, как бережно и аккуратно ваши строители обращались с материалами, ведь на каждом брусе видна забота о качестве и конечном результате.
Отзывы из 2гис
4.9
43 отзывов
Дополнительные услуги 88%
2 154 оценок
Комплектации 89%
1 535 оценок
Планировки 90%
2 484 оценок
Проекты 93%
2 231 оценок
С
Евгения13.05.2026 г.
Построили дом 8,5х8,5 с мансардой и эркером, взяли под усадку, через год законопатили сами. К материалу претензий нет, брус камерной сушки, не повело. Обидно, что обещали скидку на вторую отделку, но потом «забыли» — не принципиально.
С
Ясмина Е.06.02.2026 г.
Строили летний дом эконом-класса, просто чтобы было куда приехать на шашлыки. Получилось даже уютнее, чем мы ожидали. Бабушка теперь всё просится туда пожить.
С
Маргарита Сальникова11.05.2025 г.
Я ценю, что смета осталась неизменной с момента подписания договора и до окончания строительства, а это в наше время большая редкость и показатель честности компании.


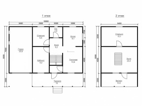
Проект №81 Каркасный дом 11х9

каркас из строганой доски
Создайте свой план для этого проекта
и отправьте его нам на расчет в один клик.
Каркасный дом (150 мм) 9х11 Толщина утепления 150 мм 3475700 Заказать
Каркасный дом (200 мм) 9х11 Толщина утепления 200 мм 3775700 Заказать

Доставка включена в стоимость дома!

Воспользуйтесь нашим планировщиком, чтобы адаптировать под себя уже готовые проекты и получить уникальную планировку.

С использованием планировщика вы имеете возможность сделать схемы, планы, эскизы, чертежи дома с эркером, мансардой, с одной, двумя или тремя спальнями. В результате вы получите отличный проект, стопроцентно отвечающий вашим требованиям.

Вы можете выбрать определенный тип крыши: двускатная, четырехскатная и вальмовая. Двухскатную считают особенно популярной у малометражных построек.

Популярные на сегодняшний день размеры домов: мини - до 50м2 (в основном, одноэтажные); компактные - от 70 до 100 м2 (обычно 2-этажные); большие постройки - начиная от 150 квадратов и более.

Предлагаем дуплексы - большие каркасные дома с двумя входами на 2 семьи. Эти дома предполагаются для нескольких хозяев, они разделены на две половины, для каждой половины - отдельный вход.


Наши работы

Перейти в галерею


Комплектация

Площадь застройки: 99 м2
Длина: 11 м
Ширина: 9 м
Общая площадь: 115 м2
Исполнение Под ключ (с отделкой)
Фундамент Свайно-винтовой или ж/б сваи (рассчитываются отдельно).
Гидроизоляция фундамента Рубероид в два слоя.
Основание (обвязка) Из обрезного бруса 150х150 мм. 150х200 мм. согласно выбранной толщине утепления. Торцевая доска строганая 45х145/45х195+/-5 мм. согласно выбранной толщине утепления. Обработка антисептиком.
Цокольное перекрытие Строганая доска камерной сушки 45х145/45х195+/-5 мм. с шагом 590 мм. Обработка антисептиком.
Пол черновой Обрезная доска камерной сушки 20х100 мм.
Влаго-ветрозащита чернового пола Мембрана Ондутис А100.
Внешние стены Стойки каркаса из строганой доски камерной сушки 45х145/45х195+/-5 мм. с шагом 590 мм. Верхняя двойная и нижняя обвязки из строганой доски камерной сушки 45х145/45х195+/-5 мм. Разгрузочный ригель из строганой доски 45х145+/-5 мм. Укосины из строганой доски 20х95 мм.
Перегородки Стойки каркаса из строганой доски камерной сушки 45х95+/-5 мм. с шагом 590 мм. Верхняя двойная и нижняя обвязки из строганой доски 45х95+/-5 мм. Разгрузочный ригель из строганой доски камерной сушки 45х145+/-5 мм. Укосины из строганой доски камерной сушки 20х95 мм.
Сборка каркаса На гвозди.
Высота от пола до потолка Дом одноэтажный: 2,5 м. Дом с мансардой: 1-ый этаж- 2,5 м.
2-ой этаж (мансарда)- 2,3 м.
Дом в полтора и два этажа:
1-ый этаж 2,5 м.
2-ой этаж 2,4 м. в полутораэтажном доме
2,5 м. в двухэтажном доме.
Внешняя отделка стен Имитация бруса камерной сушки, сорт АВ, толщиной 17 мм. Монтаж через строганый брусок камерной сушки 45х45+/-5 мм. (вентилируемый фасад). Влаго-ветрозащитная мембрана- Ондутис А100.
Внутренняя отделка стен, перегородок Евровагонка камерной сушки, сорт АВ, толщиной 12,5 мм. по строганой рейке 20х40+/-5 мм. либо ГКЛ 12,5 мм.
Отделка потолка Евровагонка камерной сушки, сорт АВ толщиной, 12,5 мм. по строганой рейке 20х40+/-5 мм. либо ГКЛ 12,5 мм.
Пол чистовой Шпунтованная доска камерной сушки толщиной 35-36 мм. сорт АВ. по строганой рейке 20х40+/-5 мм. либо шпунтованная ДСП 16 мм. по разряженной обрешётке из строганой доски камерной сушки 20х95+/-5 мм.
Утепление (пол, потолок) Минеральная вата Knauf 150/200 мм. согласно выбранной толщине утепления.
Утепление стен Плитный утеплитель Rockwool, толщиной 150/200 мм. согласно выбранной толщине утепления.
Звукоизоляция перегородок Плитный утеплитель Rockwool, толщиной 100 мм.
Пароизоляция (стены, перегородки, пол, потолок) Плёнка Ондутис R70. Дополнительная герметизация нахлёстов/примыканий пароизоляционной плёнки клейкой лентой Delta.
Окна Двухкамерные стеклопакеты ПВХ белого цвета, профиль 60 мм. В комплекте: отливы, подоконники, москитные сетки.
Двери Входная- металлическая, утеплённая (Россия). Межкомнатные- филёнчатые.
Наличники на окна и двери Наличник деревянный, строганый, камерной сушки 70-90 мм. с двух сторон.
Лестница (при наличии второго этажа) Деревянная, одно или двухмаршевая. Перила- заводские резные, балясины- заводские точеные, устанавливаются стартовые точёные столбы. Ступени 40х200 мм. Тетива лестницы- 90х140 мм.
Крыша Двускатная, ломаная или вальмовая в соответствии с проектом.
Стропильная система Выполнена из строганой доски камерной сушки 45х145/45х195+/-5 мм. Шаг установки стропил 590 мм.
Обрешётка Выполняется из строганой доски камерной сушки толщиной 20х95+/-5 мм. Шаг крепления обрешетки 350 мм. Контробрешётка выполняется из строганого бруска камерной сушки 45х45+/-5 мм. Крепится по стропилам (вентиляционный зазор).
Подкровельная мембрана Ондутис А100
Кровельное покрытие (на выбор) Металлочерепица 0,45 мм. Цвет на выбор.
Фронтоны (при наличии) Каркас из строганой доски камерной сушки 45х145/45х195+/-5 мм. Обшиваются имитацией бруса камерной сушки, сорт АВ, толщиной 17 мм. Монтаж через строганый брусок камерной сушки 45х45+/-5 мм. (вентилируемый фасад). Влаго-ветрозащитная мембрана- Ондутис А100. Монтаж вентиляционных решёток.
Свесы крыши Ширина 400 мм. Подшиваются вагонкой камерной сушки, сорт АВ.
Терраса/балкон (при наличии) Устанавливаются опорные столбы из строганного бруса камерной сушки 140х140 мм.
Отделка потолка террасы/балкона Евровагонка камерной сушки толщиной 12,5 мм. сорт АВ.
Пол террасы/балкона Шпунтованная доска камерной сушки толщиной 35-36 мм. сорт АВ.
Ограждение террасы/балкона Перила- строганая доска. Балясины- точеные, фигурные. Либо ограждение в скандинавском стиле. Устанавливаются ступени у входа.
Допуск на геометрические параметры Составляет +/- 50 мм по длине с каждой стороны.
Допускается стыковка имитации бруса, вагонки и половой доски По всему периметру стен дома (если ширина и длина дома более 6,0 метров). Вагонки и доски пола в каждой отдельной комнате.
Допуски по имитации бруса, вагонке, доске +/- 5 мм.
В стоимость включена Доставка комплекта материала в радиусе 500 км. от г. Пестова Новгородской области и сборка дома на вашем участке.
Гарантия 5 лет.
Бытовка строительная 2,0х3,0 м. каркасно-щитовая. Стоимость 23000 руб. Остаётся на участке Заказчика.
Туалет 1,0х1,0 м. каркасно-щитовой. Стоимость 12000 руб. Остаётся на участке Заказчика.
Генератор Стоимость аренды на весь срок строительства 15000 руб. ГСМ за счёт Заказчика.

Постройка каркасного дома может выполняться в 2-х вариантах: под ключ и под усадку, когда сруб отстаивается определенное время.

В зимний период лучше строить в морозную погоду, чтобы каркас не отсырел, в летнюю пору - не под дождем.

Максимально подходящими для сада или дачи стали бюджетные домики на винтовых сваях, на нашем сайте вы увидите одноэтажные и полуторатажные дома.

Для постоянного проживания, советуем надежные и очень теплые одноэтажные и двухэтажные коттеджи и дома на ленточном и плитном фундаменте.

Существует два варианта толщины утепления: 200 мм и 150 мм. Каркасные дома с толщиной стен 150 мм получаются дешевле, но не такими теплыми.

Дополнительные услуги


Дом с каркасной структурой балконом и большой террасой, по эскизу 81 полутораэтажный с теплоизоляционной двускатной строительной конструкцией кровли, может похвастаться экологической безопасностью, в связи с использованием ориентированно-стружечных плит, базальтовой и минеральной ваты, что гарантирует отличную теплоизоляцию, приятный микроклимат в жилище. Габариты жилища составляют 9х11 м., общая пригодная для жизни площадь - 115 кв.м.. Наша фирма в самые короткие сроки создаст для вас дом с каркасной структурой по индивидуальному или типовому плану в Анапе в оптимальное для вас время года и на любом виде грунта.

Популярные проекты


Каркасные дома 8х8 Каркасные дома 6х5 Двухэтажные бани из бруса
хит продаж
Тип: с террасой
Общая площадь: 2
2229040
от 2122900
хит продаж
Тип:
Общая площадь: 2
3323980
от 3165700
хит продаж
Тип: с большой террасой
Общая площадь: 2
2145040
от 2042900
Дома из бруса

Заказать или задать вопрос



Заказать или задать вопрос

Заказать звонок